Objekt

Ort
90459
 
Nürnberg
Wohnfläche
83
 m²
Verkaufsfläche
 m²
Nutzfläche
 m²
Vermietbare Fläche
 m²
Lagerfläche
 m²
Gastrofläche
 m²
Bürofläche
 m²
Grundstückfläche
 m²
Gesamtfläche
83
 m²
Zimmer
4
Baujahr
1900
Kaufpreis
 €
Courtage
Kaltmiete
840,00
 €
Nebenkosten
80,00
 €
Verfügbar ab
15.03.2026

Ihr Ansprechpartner

EURAG GmbH
Telefonnummer
Faxnummer
+49 911 3073 450
E-Mail-Adresse
Anschrift
Fichtestraße 26
90489, Nürnberg
Anbieter kontaktieren
Exposē herunterladen
Objekt-Nr.:
4997

N-Lichtenhof: Schöne 4-Zi-Whg (4.OG o Lift), EBK, Bad-WC getrennt

Objektbeschreibung

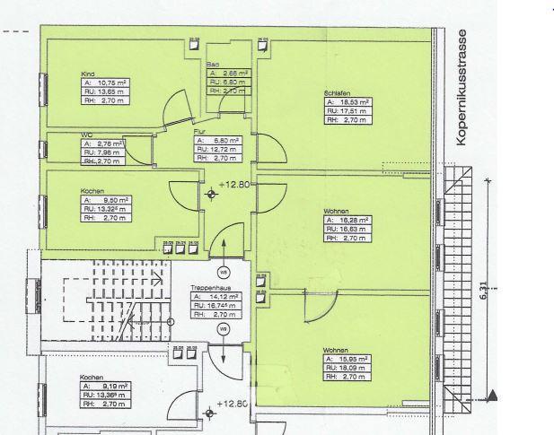
Schöne 4-Zimmer-Wohnung mit ca. 83 m² Wohnfläche im 4. Obergeschoss eines Mehrfamilienhauses (ohne Lift) mit insg. 13 Mietparteien im Haus (Baujahr 1900). Die Wohnung ist mit einer Küchenzeile inklusive E-Herd mit Ceran-Kochfeld, Kühlschrank und Dunstabzugshaube ausgestattet. Diese wird zur kostenlosen Nutzung zur Verfügung gestellt. Eine Festanstellung ist gewünscht! Der Vermieter wünscht eine Anmietung von mindestens einem Jahr. Ausstattung: - Wohnräume sind mit Laminatböden ausgestattet - Küche, Badezimmer, Toilette und Küche gefliest - Küche - die vorhandene Küchenzeile steht zur kosenlosen Nutzung zur Verfügung - Badezimmer mit Badewanne - Separates WC - Waschmaschinenanschluss in der Küche - Kellerabteil kann genutzt werden - Kunststofffenster mit Isolierverglasung - Gas-Etagenheizung Die Nebenkosten enthalten keine Hausordnung (Putzdienst) und keinen Winterdienst (Schneeräumen). Dies wird von den Mietern im turnusmäßigen Wechsel selbst übernommen. Die Nebenkosten in Höhe von EUR 80,-- monatlich beinhalten keinen Heizkosten- oder Stromabschlag. Die Anmeldung (Heizung und Strom) muss eigenständig beim örtlichen Energieversorger erfolgen, die Abschlagszahlungen erfolgen direkt an den Energieversorger. Energieausweis noch nicht vorhanden - ist bereits angefragt

Lage

Zentrale und verkehrsgünstige Lage in Lichtenhof. Alle Geschäfte des täglichen Bedarfs vorhanden, sehr gute Verkehrsanbindung durch Straßenbahn und U-Bahn. Zahlreiche, unterschiedliche Restaurants im nahen Umfeld.

Energiewerte

Energiebedarf
Energieeffizienklasse
E-Ausweis Art
Energiekennwert
Energieeffizienzklasse
Primärenergieträger

Objektanfrage

Thank you! Your submission has been received!
Oops! Something went wrong while submitting the form.
Mieterselbstauskunft
No items found.