Objekt

Ort
90768
 
Fürth
Wohnfläche
120
 m²
Verkaufsfläche
 m²
Nutzfläche
50
 m²
Vermietbare Fläche
 m²
Lagerfläche
 m²
Gastrofläche
 m²
Bürofläche
 m²
Grundstückfläche
613
 m²
Gesamtfläche
 m²
Zimmer
4
Baujahr
1954
Kaufpreis
520000,00
 €
Courtage
3,57% Maklercourtage vom Kaufpreis inkl. Mwst.
Kaltmiete
 €
Nebenkosten
 €
Verfügbar ab
Keine Angabe

Ihr Ansprechpartner

EURAG GmbH
Telefonnummer
Faxnummer
+49 911 3073 450
E-Mail-Adresse
Anschrift
Fichtestraße 26
90489, Nürnberg
Anbieter kontaktieren
Exposē herunterladen
Objekt-Nr.:
5416

FÜ-Dambach: Gemütliches Einfamilienhaus in Bestlage - Erbpacht Laufzeit bis 2076

Objektbeschreibung

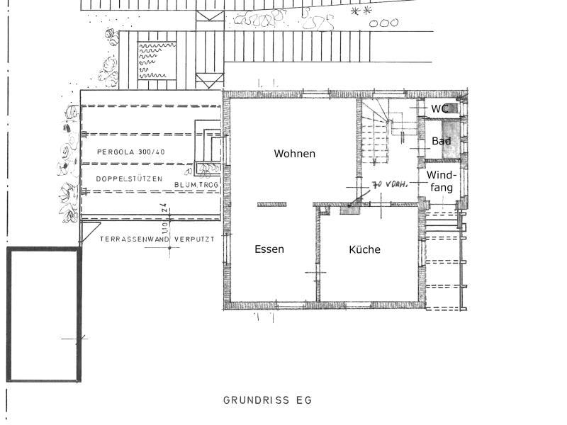
Das gemütliche Einfamilienhaus wurde 1954 errichtet und befindet sich in einem guten Zustand. Es befindet sich in einer begehrten Wohnlage auf einem ca. 613 m² großen Grundstück und verfügt über ca. 120 m² Wohnfläche im Erdgeschoss und Obergeschoss und ca. 50 m² Nutzfläche im Keller. Zudem verfügt es über einen nicht ausgebauten Spitzboden. Auf dem Grundstück befindet sich eine Garage mit Stellplatzfläche für ein weiteres Fahrzeug davor. Weiter befindet sich ein Gartenhäuschen im Gartenbereich, das genügend Platz für alle Gartengeräte bereithält. Erdgeschoss: - Wohn- und Essbereich mit direktem Zugang zur Terrasse durch großzügige Hebeschiebetür - komplett überdachte Terrasse mit einer verglasten Seitenwand aus Schiebetür - Küche mit zwei Fenstern - Bad mit Badewanne und Waschbecken - Gäste-WC - Windfang und Diele - Überdachter Eingangsbereich Obergeschoss - zwei Schlafzimmer - Badezimmer mit Dusche, Waschbecken und WC - Flur Keller - Waschküche - Technikraum - Ölzentralheizung (Baujahr 2004) - zwei Kellerräume - Kelleraussentreppe mit direkten Gartenzugang Das Grundstück ist im Rahmen eines Erbbaurechtsvertrages gesichert. Der monatliche Erbpachtzins beträgt ca. EUR 660,--. Der Vertrag läuft noch bis zum 31.12.2076. Danach entscheidet sich, ob der Vertrag verlängert wird, das Grundstück vom Erbpachtgeber gekauft werden kann oder der Erbpachtgeber das Haus zu 2/3 des Marktwertes dem Erbpachtnehmer abkauft.

Lage

Der Stadtteil Dambach ist einer der begehrtesten und exklusivsten Wohnlagen Fürths, denn hier vereinigen sich die Vorteile zurückgezogenen Wohnens im Grünen mit den Vorteilen urbaner Infrastruktur: Der Naherholungsraum des Fürther Wiesengrundes trennt das stille Wohngebiet vom Stadtzentrum, bleibt mit allen Verkehrsmitteln und auch zu Fuß leicht, schnell und bequem zugänglich.Sehr gute Verkehrsanbindung duch die Süd-West-Tangente; wenige Minuten in das Stadtzentrum sowie durch die Anbindung der öffentlichen Verkehrsmittel. Kindergärten, Grund- und Realschule sowie drei Gymnasien in Dambach bzw. Fürth vorhanden. Alle Geschäfte des täglichen Bedarfs vorhanden.

Energiewerte

Energiebedarf
399.70
Energieeffizienklasse
E-Ausweis Art
BEDARF
Energiekennwert
Energieeffizienzklasse
H
Primärenergieträger
Öl

Objektanfrage

Thank you! Your submission has been received!
Oops! Something went wrong while submitting the form.
Mieterselbstauskunft
No items found.