Objekt

Ort
90439
 
Nürnberg
Wohnfläche
30,05
 m²
Verkaufsfläche
 m²
Nutzfläche
 m²
Vermietbare Fläche
 m²
Lagerfläche
 m²
Gastrofläche
 m²
Bürofläche
 m²
Grundstückfläche
 m²
Gesamtfläche
 m²
Zimmer
1
Baujahr
2025
Kaufpreis
 €
Courtage
provisionsfrei
Kaltmiete
699,00
 €
Nebenkosten
72,00
 €
Verfügbar ab
15.01.2026

Ihr Ansprechpartner

EURAG GmbH
Telefonnummer
Faxnummer
+49 911 3073 450
E-Mail-Adresse
Anschrift
Fichtestraße 26
90489, Nürnberg
Anbieter kontaktieren
Exposē herunterladen
Objekt-Nr.:
5453

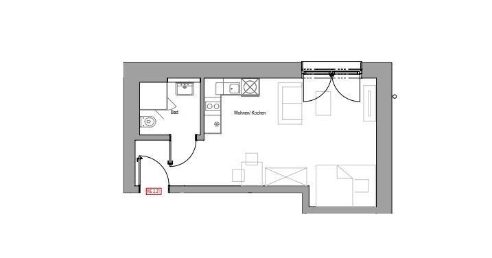
N-Schweinau: Erstbezug! Geräumige, helle 1-Zi-Whg. (4.OG) mit EBK & Aufzug

Objektbeschreibung

ERSTBEZUG in einer neu errichteten, urbanen Wohnanlage, die die Anforderungen an den KfW40 -Standard erfüllt. Im Haus befindet sich ein Aufzug mit dem man alle Etagen, inkl. Tiefgarage, erreicht. Moderne Wohneinheiten in verschiedenen Größen warten auf Sie - sprechen Sie uns gerne darauf an. Kompakte 1-Zimmer-Wohnung im 4. OG mit ca. 30 m² Wohnfläche und moderner Ausstattung. Ausstattung: - Wohnraum und Flur mit hochwertigem Design-Vinylboden in Holzoptik ausgestattet - Badezimmer mit modernen Design-Fliesen im Format 60 cm x 60 cm gestaltet - Offene Küche mit hochwertiger Einbauküche inkl. aller Geräte - Badezimmer mit Dusche (Abtrennung aus Echtglas), WC und moderner Sanitärausstattung - Waschmaschinenanschluss in Küchenzeile vorhanden - Kunststofffenster mit Wärmeschutzverglasung - elektrisch gesteuerte Rollläden - Fußbodenheizung mit elektrischen Raumthermostaten - Video-Gegensprechanlage - Barrierefrei - Kellerabteil - Beheizung über Fernwärme mit energieeffizienter Kraft-Wärme-Kopplung Ein Tiefgaragen-Stellplatz kann für monatlich zu EUR 120,-- zzgl. zur Wohnungskaltmiete angemietet werden. Die Nebenkosten in Höhe von EUR 72,00 monatlich beinhalten einen Heizkostenabschlag, jedoch keinen Abschlag für Strom. Die Anmeldung (Strom) muss eigenständig beim örtlichen Energieversorger erfolgen. Die Nebenkosten enthalten die Hausordnung (Putzdienst) und den Winterdienst (Schneeräumen). Der Vermieter wünscht eine Anmietung von mindestens zwei Jahren und eine Indexmietvereinbarung im Mietvertrag.

Lage

Zentrale und verkehrsgünstige Lage in Nürnberg-Schweinau, gute Verkehrsanbindung durch öffentliche Verkehrsmittel. U-Bahn-Linien U 2 und U 3 fahren in die Innenstadt Nürnbergs und auch der Hauptbahnhof ist somit auch ohne Auto gut zu erreichen. Alle Geschäfte des täglichen Bedarfs sind in unmittelbarer Nähe.

Energiewerte

Energiebedarf
54.80
Energieeffizienklasse
E-Ausweis Art
BEDARF
Energiekennwert
Energieeffizienzklasse
B
Primärenergieträger
Fernwärme

Objektanfrage

Thank you! Your submission has been received!
Oops! Something went wrong while submitting the form.
Mieterselbstauskunft
No items found.