Objekt

Ort
90449
 
Nürnberg
Wohnfläche
140
 m²
Verkaufsfläche
 m²
Nutzfläche
50
 m²
Vermietbare Fläche
 m²
Lagerfläche
 m²
Gastrofläche
 m²
Bürofläche
 m²
Grundstückfläche
149
 m²
Gesamtfläche
 m²
Zimmer
4
Baujahr
1989
Kaufpreis
 €
Courtage
provisionsfrei
Kaltmiete
1750,00
 €
Nebenkosten
200,00
 €
Verfügbar ab
Keine Angabe

Ihr Ansprechpartner

EURAG GmbH
Telefonnummer
Faxnummer
+49 911 3073 450
E-Mail-Adresse
Anschrift
Fichtestraße 26
90489, Nürnberg
Anbieter kontaktieren
Exposē herunterladen
Objekt-Nr.:
5454

N-Röthenbach West: Modernes RMH mit offenem Wohnbereich, Dachstudio, Garage - möbliert möglich

Objektbeschreibung

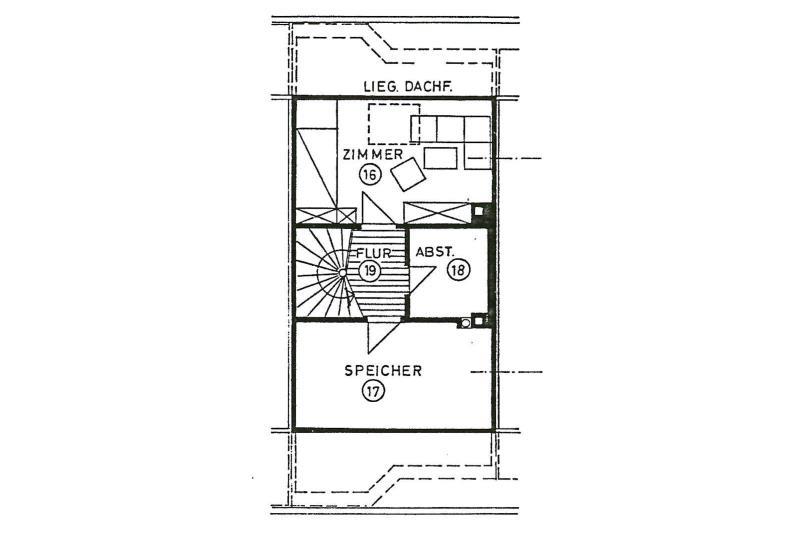
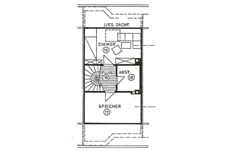
Das Reihenmittelhaus (Baujahr 1989) verfügt über ca. 140 m² Wohnfläche im Erdgeschoss, Obergeschoss und Dachgeschoss. Im Keller stehen weitere ca 50 m² als Nutzfläche zur Verfügung. Die Grundstücksfläche beträgt ca. 149 m². Zu dem Haus gehört eine Garage, die sich in dem nahegelegenen Garagenhof befindet. Diese ist für Das Haus verfügt über eine Garage im nahegelegenen Garagenhof, dieser ist für monatlich EUR 75,-- zzgl. zur Hauskaltmiete anzumieten. Aufteilung: Keller: Hobbyraum, Hauswirtschaftsraum, Abstellraum, Heizungsraum Erdgeschoss: Wohn-Essbereich, Küchenbereich, Garderobe, Gäste-WC, Obergeschoss: 2 Zimmer (2 Zimmer wurden zusammengefügt), Badezimmer, Flur Dachgeschoss: Studiozimmer und Badezimmer Ausstattung - Offen gestaltetes Erdgeschoss mit Wohn-Ess- und Küchenbereich - Küche mit Fenster und Einbauküche - Gäste-WC mit Fenster - Badezimmer im OG mit bodengleicher Dusche, Waschbecken und WC - Badezimmer im DG mit Fenster, Dusche, Waschbecken und WC - Beheizung über Öl-Zentralheizung - Alle Fenster mit elektr. Rollos (auch Dachflächenfenster) Die im Objekt befindlichen Möbel können abgelöst oder mit vermietet werden. Die Beheizung des Anwesens erfolgt mittels Ölheizung. Die Nebenkostenvorauszahlung in Höhe von EUR 200,-- monatlich beinhalten keinen Heizkosten-, Warmwasser oder Stromabschlag. Die Anmeldung (Heizung, Warmwasser und Strom) muss eigenständig beim örtlichen Energieversorger erfolgen, die Abschlagszahlungen erfolgen direkt an den Energieversorger. Energieausweis noch nicht vorhanden - ist bereits angefragt

Lage

Zentrale, verkehrsgünstige und dennoch ruhige Lage in Nürnberg - Ortsteil Röthenbach bei Schweinau. Schulen, Ärzte, Apotheken in unmittelbarer Nähe. Viele Einkaufsmöglichkeiten sind fußläufig beispielsweise im Einkaufscenter Röthenbach erreichbar; U-Bahn, Bus und Zug sind ebenfalls im direkten Umfeld. Diverse Freitzeitmöglichkeiten bietet unter anderem das Steiner Schloss mit angrenzendem Wald oder das Erlebnisbad Palm Beach in der Nähe.

Energiewerte

Energiebedarf
Energieeffizienklasse
E-Ausweis Art
Energiekennwert
Energieeffizienzklasse
Primärenergieträger

Objektanfrage

Thank you! Your submission has been received!
Oops! Something went wrong while submitting the form.
Mieterselbstauskunft
No items found.