Objekt

Ort
90459
 
Nürnberg
Wohnfläche
 m²
Verkaufsfläche
 m²
Nutzfläche
 m²
Vermietbare Fläche
 m²
Lagerfläche
90
 m²
Gastrofläche
 m²
Bürofläche
 m²
Grundstückfläche
 m²
Gesamtfläche
90
 m²
Zimmer
Baujahr
1900
Kaufpreis
 €
Courtage
2 Nettomonatsmieten zzgl. gesetzlich gültige MwSt
Kaltmiete
445,00
 €
Nebenkosten
80,00
 €
Verfügbar ab
ab sofort

Ihr Ansprechpartner

EURAG GmbH
Telefonnummer
Faxnummer
+49 911 3073 450
E-Mail-Adresse
Anschrift
Fichtestraße 26
90489, Nürnberg
Anbieter kontaktieren
Exposē herunterladen
Objekt-Nr.:
5473

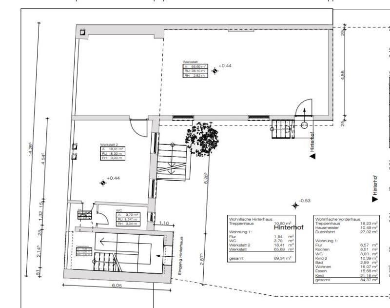
N-Lichtenhof: Großzüge Lagerfäche, 2 Räume, Flur & WC, EG im Hinterhof

Objektbeschreibung

Die Lagerfläche mit einer Gesamtfläche von ca. 90 m² setzt sich aus 2 Lagerräumen, Flur und WC zusammen. Ein Teil der Räumlichkeiten befinden sich direkt im EG eines Wohnhauses. Insofern sind sie lediglich für eine Lagerung bzw. Nutzung ohne Lärmbelästigung geeignet. - 1 Lagerraum mit ca. 66 m², Betonboden - 1 Lagerraum mit ca. 18 m², Kunststoffboden - Flur - WC mit Möglichkeit Einbau eines Waschbeckens - Raumhöhe: ca. 3,00 m - derzeit nicht beheizt - Gasanschluss vorhanden Die Nebenkosten in Höhe von ca. EUR 80,-- monatlich beinhalten keinen Heizkosten- oder Stromabschlag. Die Anmeldung (Heizung und Strom) muss eigenständig beim örtlichen Energieversorger erfolgen, die Abschlagszahlungen erfolgen direkt an den Energieversorger. Alle genannten Preise sind Nettopreise, d.h. vom Mieter ist zusätzlich auf Miete und Nebenkosten die gesetzliche Mehrwertsteuer in Höhe von 19% zu zahlen.

Lage

Zentrale und verkehrsgünstige Lage in Lichtenhof. Alle Geschäfte des täglichen Bedarfs vorhanden, sehr gute Verkehrsanbindung durch Straßenbahn und U-Bahn.

Energiewerte

Energiebedarf
Energieeffizienklasse
E-Ausweis Art
Energiekennwert
Energieeffizienzklasse
Primärenergieträger

Objektanfrage

Thank you! Your submission has been received!
Oops! Something went wrong while submitting the form.
Mieterselbstauskunft
No items found.